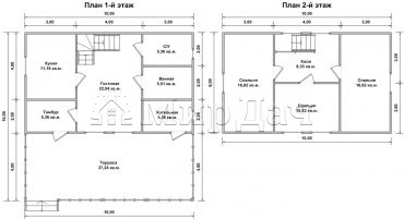
Дом под усадку 6х10 «Тутаев»

108 м2
Брус 150х150
2 105 000 ₽
Брус 200х150
2 389 000 ₽
Цена дома указана со сборкой на участке Клиента!

Уважаемый Посетитель сайта «Мир Дач»! Если Вам понравился один из наших проектов, но Вы хотите внести в него свои изменения, мы постараемся сделать все возможное, чтобы Ваши желания стали реальностью. Также возможны изменения габаритных размеров проекта, перемещение окон и дверей, расположение лестницы.

Комплектация дома под усадку:
1. Фундамент не входит в стоимость дома, рассчитывается индивидуально, в зависимости от пожеланий Клиента и планировки проекта
2. Основание: двойное: первый ряд обрезной брус 150х100 мм или 200х100 мм, второй ряд обрезной брус 100х150 мм, 150х150 мм или 200х150 мм, зависит от того, из какого бруса будет собираться сам дом.
3. Половые лаги: доска 40х150 мм, устанавливаются с шагом не более 0,6 м, черновой пол не изготавливается.
4. Чистовой пол: не изготавливается
5. Стены 1 этажа: профилированный брус сечением 100х150 мм, 150х150 мм или 150х200 мм. Между венцами бруса прокладывается льноджутовое волокно. Вид бруса с наружной стороны в двух видах: прямой прострожки или под бревно (на стоимость не влияет), изнутри прямой прострожки.
6. Перегородки 1 этажа: профилированный брус сечением 100х150 мм. Между венцами бруса прокладывается льноджутовое волокно. Вид бруса: с двух сторон прямой прострожки.
7. Сборка угла: в стоимость входит сборка в непродуваемый теплый угол.
8. Сборка сруба: сруб собирается на деревянные нагеля.
9. Утепление: не производится.
10. Пароизоляция: прокладывается только на каркасных фронтонах.
11. Высота помещений: 1 этаж 2,3-2,35 м (17 венцов бруса), 2 этаж - 2,3 м, размер устанавливается от балок межэтажного перекрытия до балок перекрытия второго этажа
12. Балки межэтажного перекрытия: доска 40х150 мм, устанавливаются с шагом не более 0,6 м.
13. Потолки дома: не подшиваются.
14. Мансарда: не обшивается.
15. Окна: не устанавливаются.
16. Двери: не устанавливаются.
17. Кровля: волнистые листы ондулин, с возможностью выбора цвета (красный, коричневый, зеленый), укладка паровлагоизоляции.
18. Стропила и обрешетка: стропила изготавливаются из доски 40х150 мм с шагом не более 0,6 м; обрешетка из обрезной доски, толщиной 20-25 мм.
19. Лестница: не изготавливается.
20. Внутренняя и наружная отделка выполняется оцинкованными гвоздями.
21. Углы и поднебесники: исполняются из вагонки хвойных пород дерева, толщиной 12-18 мм.
22. Фронтоны: изготавливаются из доски 40х100 мм, обшиваются вагонкой хвойных пород дерева, толщиной 12-18 мм, принудительной сушки (влажность 20-22%), с прокладкой ветрозащитной пленки.

Почему стоит обращаться именно к нам?

Максимальный объем комплектующих
Высший сорт материалов гост 11047-90
Работа производится в срок
Собственные квалифицированные строители
Собственный грузовой автопарк
Цена фиксируется договором
Обсчет вашего проекта бесплатно
Собственное производство пиломатериала

    Остались вопросы? Пишите нам

    Отправляя заявку вы соглашаетесь с политикой конфиденциальности, а также с тем, что ваши данные обрабатывает SmartCaptcha.

    Call Now Button
    Мы используем cookie-файлы для наилучшего представления нашего сайта. Продолжая использовать этот сайт, вы соглашаетесь с использованием cookie-файлов.
    Принять